Drift Lane

Selsey 3 Bedroom Detached Bungalow
3
3

Available

£625,000

Property Photo

A secluded, beautifully redesigned DETACHED BUNGALOW set within a generous mature plot to the WEST OF THE VILLAGE, offering elegant contemporary living. The property features spacious open-plan interiors, THREE DOUBLE BEDROOMS, THREE BATHROOMS, versatile reception areas and excellent external amenities including AMPLE PARKING, GARAGING, WORKSHOPS and a covered decked seating area. EPC C.

DETACHED BUNGALOW
GENEROUS PLOT
THREE DOUBLE BEDROOMS
FOUR RECEPTION AREAS
WEST OF THE VILLAGE
GARAGING AND WORKSHOPS
SOLAR PANELS
EPC C


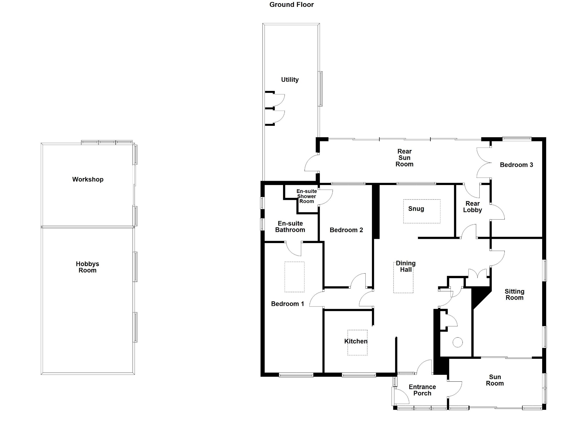
Discretely positioned in a secluded setting to the West of the village and set within an exceptionally mature and generous plot, this impressive detached bungalow has been thoughtfully redesigned and enhanced by the current owners to create an elegant and contemporary residence. The beautifully considered open-plan living spaces have been designed to maximise both comfort and enjoyment of the immaculately stocked grounds. The substantial accommodation offers three luxurious double bedrooms, three stylish bathrooms and four versatile and generously proportioned reception areas, providing exceptional flexibility for modern living and entertaining. Externally, the property is complimented by extensive off-street parking, garaging, workshops and a superb covered decked seating area adjoining the bungalow, creating an ideal setting for relaxation and social occasions. This unique home must be viewed to fully appreciate the quality, space and lifestyle it affords.

On approaching the property, you step up to a part covered decked seating area with pergola-style surrounds measuring approximately 23' 7" (7.19m) x 15' 7" (4.75m) providing a sheltered area adjacent to the property.

UPVC front door to:-

ENTRANCE PORCH:
Cloaks hanging space. Glazed door to sunroom and door to:-

DINING HALL 22' (6.71m) x 19' 10" (6.05m)
Maximum measurement. A bright and airy space with central lantern light. Built-in shelved storage cupboards. Two double radiators. Wide openings to kitchen and snug.

SHOWER ROOM 11' 4" (3.45m) x 5' 3" (1.60m)
Maximum measurement including built-in cupboard housing electric meters and fuse box, but excludes shelved linen cupboard. White suite, fully tiled and enclosed shower cubical with mains fed shower. Low level WC. Wash hand basin with cupboards below. Ladder style radiator. Access to roof space via wooden foldaway ladder being part boarded with electric light and housing Worcester combination boiler supplying central heating and domestic hot water. Hot water tank which is fuelled by solar panels.

KITCHEN 12' (3.66m) x 10' 3" (3.12m)
Fitted in a matching range of base and wall-mounted units in white with stainless steel handles and wood effect work surfaces over with part tiling to walls, providing comprehensive cupboard drawer storage. Inset 1½ bowl single drainer stainless steel sink unit with mixer tap. Integrated dishwasher below. Inset five-ring gas hob with stainless steel extractor canopy above. Built-in electric oven in upright housing unit with storage above and below. Telephone point. Vinyl flooring. Central roof lantern light.

SNUG 12' 5" (3.78m) x 8' 6" (2.59m)
Double radiator. Telephone and television aerial points.

SITTING ROOM 19' 8" (5.99m) x 11' 7" (3.53m)
Maximum measurement. Double radiator. Television aerial point. Sliding patio doors too:-

SUNROOM 15' 7" (4.75m) x 7' 10" (2.39m)
Bright south-facing room with twin patio doors giving access to the garden. Double radiator. Television aerial point.

From the dining hall, glazed doors lead to;-

REAR LOBBY 7' 4" (2.24m) x 5' (1.52m)
Double radiator. Door to:-

REAR GARDEN ROOM 28' 4" (8.64m) x 7' (2.13m)
Useful area covered by a polycarbonate roof. Sliding patio doors to rear courtyard. Door to:-

UTILITY 26' 3" (8.00m) x 8' 6" (2.59m)
Measurement includes, twin built-in storage cupboard. One corner fitted with white base and wall-mounted units with mottled work surfaces over. Inset single drainer stainless steel sink unit with mixer tap. Ample space and plumbing for automatic washing machine, tumble dryer and refrigerator.

BEDROOM ONE 21' 10" (6.65m) x 9' 6" (2.90m)
Two double radiators. Two wall light points.

ENSUITE BATHROOM
Comprises of a white suite, panelled bath with mixer/shower attachment. Low level WC. Wash hand basin in vanity unit with storage below. Ladder style radiator. Wood laminate flooring.

BEDROOM TWO 16' 9" (5.11m) x 8' 9" (2.67m)
Single radiator. Television aerial point. Wall light point.

ENSUITE SHOWER ROOM
White suite of fully tiled and enclosed shower cubical with mains fed shower. Low level WC. Wash hand basin with cupboard below. Ladder style radiator. Wood laminate flooring.

BEDROOM THREE 16' 3" (4.95m) x 8' 5" (2.57m)
Double aspect with French doors to the rear garden room. Double radiator. Engineered oak flooring.

OUTSIDE
The property is approached via double wooden gates over a gravelled driveway opening into a substantial area of gravelled parking in front of twin car port measuring 19' 4" (5.89m) x 17' 8" (5.38m) internal. Timber framed with pitching tiled roof having electric light and power. Door to GARDEN STORE 12' (3.66M) x 8' (2.44M). The main area of the garden is to the front of the property, enclosed on all boundaries and south-facing, measuring approximately 100' (30.48m) x 55' (16.74m), this measurement includes the gravelled parking area. The formal garden is enclosed by picket fencing, lawned with established flower and shrub surrounds. A paved path leads to a pond with water feature and onto a 'secret garden' which could comfortably be used as a kitchen garden. In the garden is a WORKSHOP measuring 15' (4.57m) x 13' 9" (4.19m) with electric light and power. Sliding patio doors lead to a HOBBY ROOM 24' (7.32m) x 14' (4.27m) with electric light and power. Television aerial point. Windows overlooking the garden. To the rear of the property is a REAR COURTYARD measuring 55' (16.74m) x 20' (6.10m), paved and gravelled with established trees and shrubs. Lean to style potting shed.

VIEWING
By appointment with Gilbert & Cleveland.
26-3781 RD 30.01.26

Council Tax Band: D

Available

£625,000

The Local Area

A great, friendly town with all you could need

Mr & Mrs Schmee, Bognor Regis

The seaside town of Selsey lies at the southern most point of the Manhood Peninsula. With beautiful beaches including the stunning Bracklesham Bay, Selsey has over the years become a prime spot for holidaymakers with family friendly holiday resorts such as Bunn Leisure settled along the coastline. 

Attractions include the Selsey Arts Society, The Selsey Lifeboat Station and Museum, the Selsey Windmill and the Selsey Cricket and Social Club, which is famous for being Sir Patrick Moore’s old stomping ground. 

The town has a range of local shops and is also home to some lovely restaurants, many of which make the most of the local delicacy Selsey Crab. 

The educational facilities in Selsey are good with two primary schools, The Seal Primary Academy and Medmerry Primary School and one secondary school, The Selsey Academy.

© Gilbert & Cleveland 2026

Zoopla Right Move

Website design by Brightword