Lewis Road

Selsey 3 Bedroom Detached House
2
3

SSTC

£495,000

Property Photo

This immaculately presented THREE-BEDROOM DETACHED CHALET-STYLE BUNGALOW sits in a quiet village location in the heart of the village within an easy walk of the high street and has been cleverly extended to offer versatile, sociable living spaces. Highlights include a stunning 29ft living room with a log burner, a modern L-shaped kitchen/dinning room, THREE DOUBLE BEDROOMS, and TWO CONTEMPORARY SHOWER ROOMS and a SOUTH-FACING REAR GARDEN. VENDOR SUITED. EPC D.

DETACHED CHALET-STYLE BUNGALOW
QUIET RESIDENTIAL NO-THROUGH-ROAD


CONVENIENT FOR LOCAL SHOPS AND BUS ROUTE
IMAGINATIVELY EXTENDED


29 FT LIVING ROOM
LOG BURNING STOVE


GENEROUS KITCHEN / DINING ROOM WITH UNDERFLOOR HEATING


THREE DOUBLE BEDROOMS
TWO SHOWER ROOMS


SOUTH-FACING REAR GARDEN
SUMMER HOUSE / STUDIO


AMPLE OFF-STREET PARKING
VENDOR SUITED
EPC D

Nestled in a quiet residential no-through-road in the heart of the village, just a short walk from the High Street and it's amenities. This beautifully styled and immaculately presented three-bedroom detached chalet bungalow has been imaginatively extended by the current owners, creating wonderfully versatile and sociable living spaces that make this an exceptional home for entertaining.

The accommodation includes a 29-foot living room with feature log burning stove and views over the south-facing rear garden. A stunning and thoughtfully designed L-shaped kitchen/dining room with vaulted ceiling - perfect for hosting gatherings, family meals, or relaxed evenings with friends, while three bedrooms and two contemporary shower rooms complete the stylish interior.

Outside, the property is complemented by a well-landscaped, south-facing rear garden featuring a cedarwood summer house/studio, Indian sandstone patio, and a driveway providing ample off-street parking.
Vendor suited - Viewing advised.

Part glazed composite front door leading to:-

ENTRANCE HALL
Deep cloaks cupboard with hanging rail. Radiator. Wood laminate flooring.

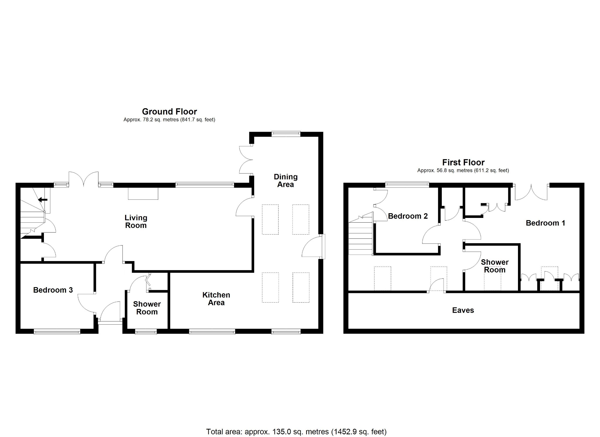
GROUND FLOOR BEDROOM THREE 10' (3.05m) x 8' 10" (2.69m)
Radiator. Wood laminate flooring.

GROUND FLOOR SHOWER ROOM
A white suite of corner shower cubicle fully tiled with a mains-fed shower, wash hand basin with mixer tap, built-in storage cupboard below, low level WC. Wall-mounted storage cabinet. Ladder style radiator. Tiled floor.

LIVING ROOM 29' (8.84m) x 10' 3" (3.12m)
Measurment excludes a range of deep under-stairs shelved storage cupboards with shelving. Feature log burning stove. Two radiators. French doors to rear garden. Door to:-

KITCHEN/DINING ROOM 26' 3" (8.00m) x 20' 4" (6.20m)
Being of an L-shaped design, this stunning and generously proportioned space features a vaulted ceiling with Velux windows and is dual aspect, allowing plenty of light to flood the room. The kitchen is fitted in a range of cream shaker-style base and wall-mounted units, providing comprehensive cupboard and drawer storage, with one housing the electric fusebox. Additionally, a matching range of pantry-style cupboards. Wood effect work surfaces inset with a utility ceramic single bowl sink unit with mixer tap over, along with an additional under-mounted stainless steel prep sink also with mixer tap. Space for an American-style fridge freezer in a tall housing unit with storage cupboards above, space for an under-counter drinks fridge and five-burner range cooker with an extractor hood over. Integrated appliances include a washing machine and dishwasher, with an additional space for a tumble dryer. The room has tiled flooring throughout that benefits from underfloor heating. A side door provides external acces while French doors open directly onto the garden.

Stairs to FIRST FLOOR leading to a light filled landing featuring Velux windows and with eaves access below. In addition, there is a generous deep storage cupboard.

BEDROOM ONE 15'4" (4.67m), narrowing to 8'11" (2.72m) x 11'10" (3.61m) measurement excludes a range of matching wardrobe and drawer storage with one cupboard housing a wall-mounted Vaillant combination boiler. French doors with a feature Juliet balcony. Two radiators.

BEDROOM TWO 9' (2.74m) x 8' 7" (2.62m) Measurement excludes a range of built-in wardrobe storage and shelving. Radiator.

SHOWER ROOM
A white suite, shower cubical, fully tiled with a mains-fed shower. Wash hand basin with mixer tap. Cupboard storage below and a low-level WC. Ladder style radiator.

OUTSIDE
Outside, the property is approached over a gravel driveway providing ample off-street parking. Twin-gated pedestrian access leads to the fully enclosed south-facing rear garden which has been thoughtfully landscaped to create a peaceful yet impressive outdoor space, ideal for summer entertaining. An Indian sandstone patio provides an elegant seating or dining area, beautifully complimented by an illuminated olive tree. Borders planted with mature shrubs and trees. A central lawn with stepping stones leading to the cedarwood summer house/studio equipped with electricity, Wi-Fi, a built-in storage bench and worktop with drawer storage below - an excellent additional space ideal for hobbies, creative pursuits or simply relaxing. The garden also benefits from a garden shed, green house, outside standpipe and external electricity points adding to its functionality.

VIEWING
By appointment with Gilbert & Cleveland.
25-3775 RD 27.11.25

Council Tax Band: D

SSTC

£495,000

The Local Area

A great, friendly town with all you could need

Mr & Mrs Schmee, Bognor Regis

The seaside town of Selsey lies at the southern most point of the Manhood Peninsula. With beautiful beaches including the stunning Bracklesham Bay, Selsey has over the years become a prime spot for holidaymakers with family friendly holiday resorts such as Bunn Leisure settled along the coastline. 

Attractions include the Selsey Arts Society, The Selsey Lifeboat Station and Museum, the Selsey Windmill and the Selsey Cricket and Social Club, which is famous for being Sir Patrick Moore’s old stomping ground. 

The town has a range of local shops and is also home to some lovely restaurants, many of which make the most of the local delicacy Selsey Crab. 

The educational facilities in Selsey are good with two primary schools, The Seal Primary Academy and Medmerry Primary School and one secondary school, The Selsey Academy.

© Gilbert & Cleveland 2026

Zoopla Right Move

Website design by Brightword